Aprovechar las desventajas de una parcela difícil nos permitió en este proyecto extraer al máximo su potencial. La parcela es alargada y con un fuerte desnivel, pero también se vuelca hacia las vistas al mar en toda su amplitud. El proyecto extrae estas características tan marcadas para conseguir que el habitar de esta «villa» se desarrolle acorde con el lugar. Ascender para buscar las vistas y expandirse, para perderse en la horizontalidad del mar.





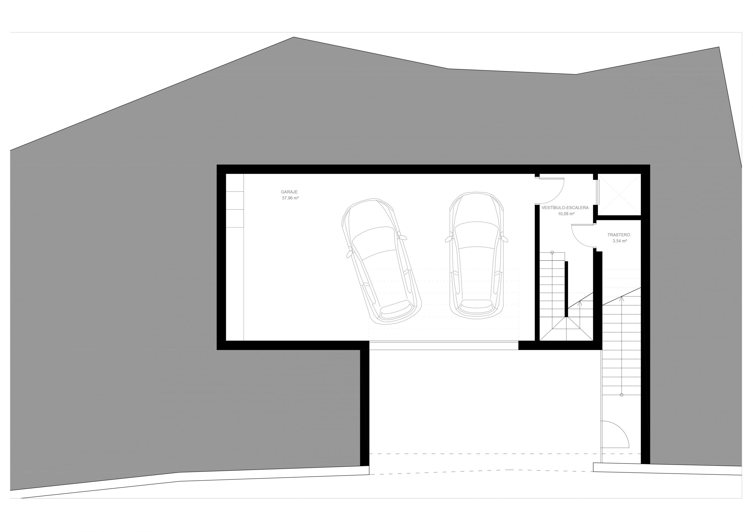
PLANTA DE ACCESO:

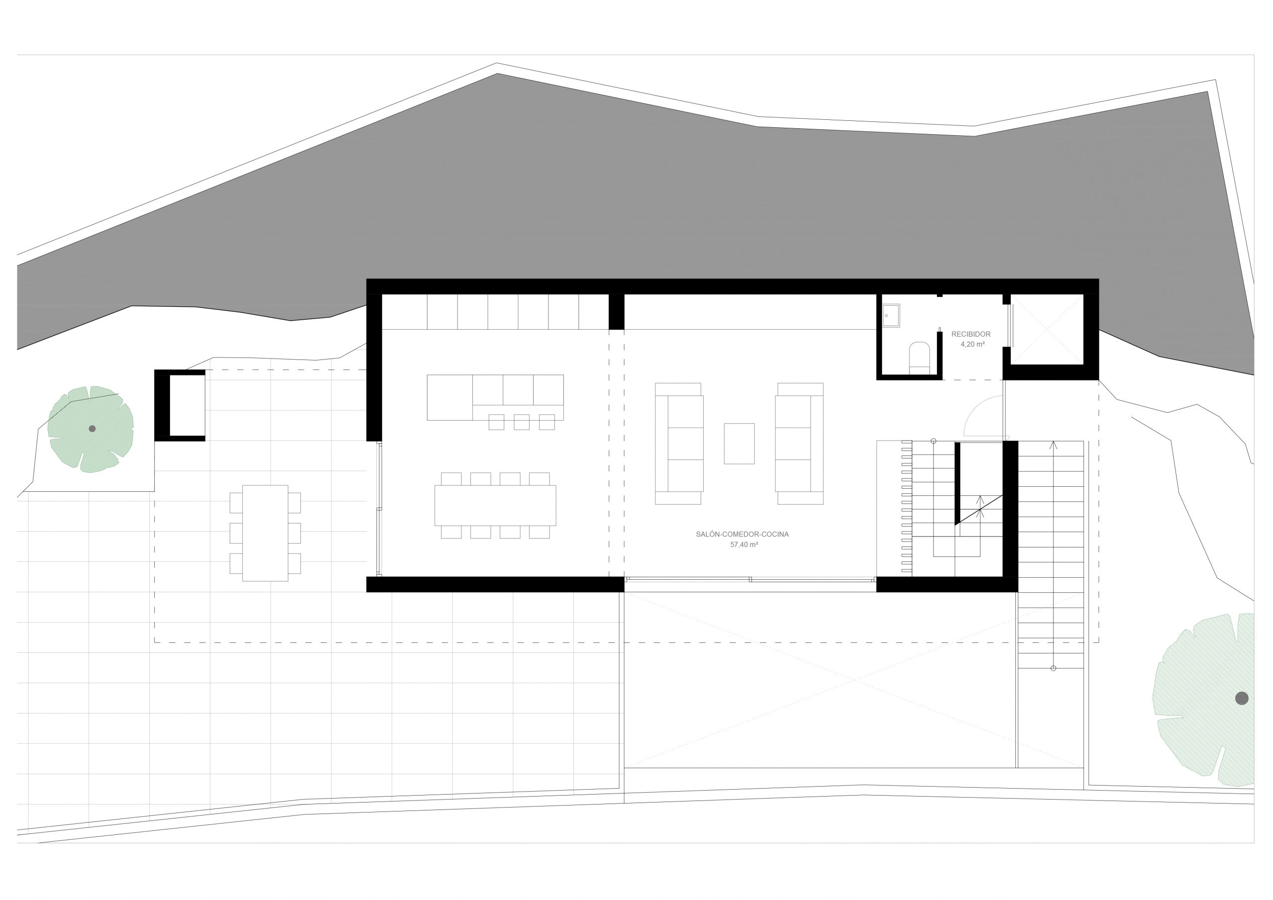
PLANTA PRINCIPAL:

PLANTA PRIMERA:


