El edificio remodela y amplia un edificio propiedad del ayuntamiento, el cual fué sede del sindicato agrícola de Benigembla. La fachada, protegida por el plan general, se rehabilita y se integra dentro del proyecto siendo esta la que regulará las trazas de la ampliación.
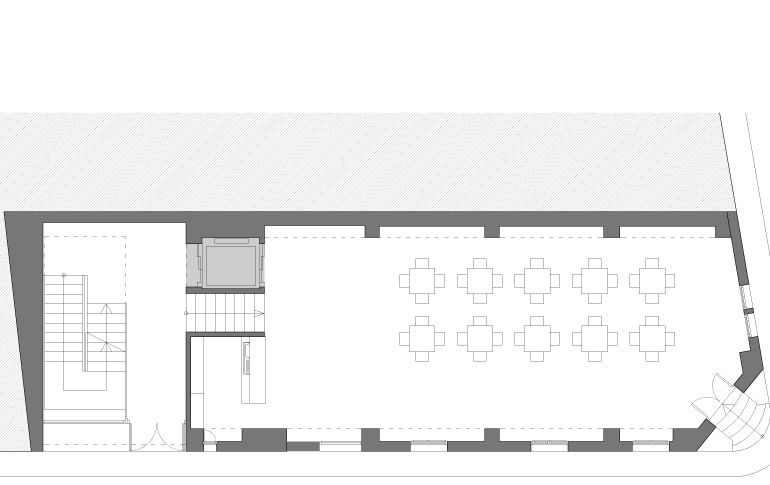
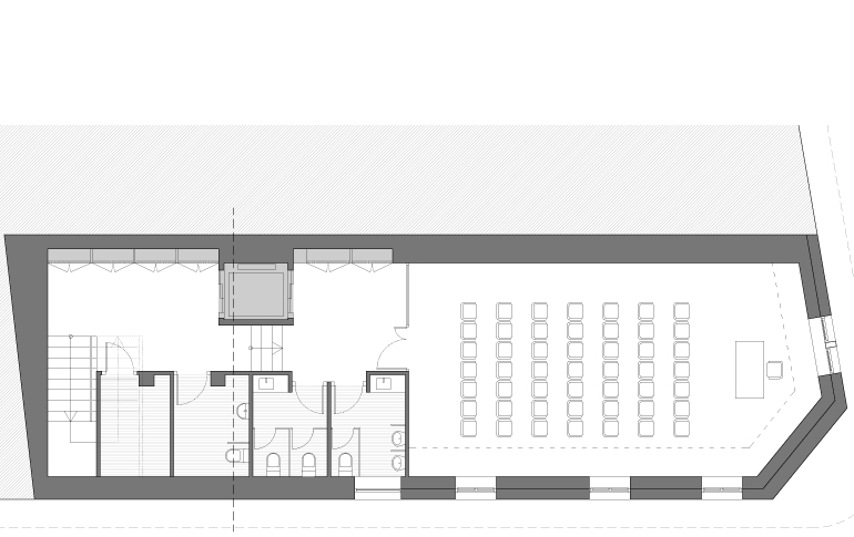
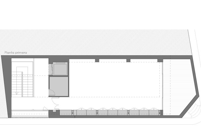
La ampliación se efectúa ocupando un solar anexo y ganando una planta más al antiguo edificio por requisitos del programa, en el que solamente se pedian 3 salas multifuncionales de la mayor dimensión posible.
Para no desvirtuar la composición de la fachada histórica, la nueva cubierta se levanta y se retranquea, para garantizar la independencia y preponderancia del antiguo edificio.
La materialidad es piedra, metal y madera, que integra el edificio y su ampliación en la materialidad del entorno.
El conjunto se ata mediante un nuevo acceso y escalera, que resuelve los problemas de accesibilidad y establece una transición entre el interior y el exterior, adoptando en el interior la materialidad del exterior.
La escalera dota de un carácter público al acceso a través de su concepción y construcción, y se presenta como un elemento visual y materialmente potente, reforzando el carácter público del edificio, e invitando a recorrerlo.
La escalera identifica mediante dos materiales los recorridos. Para el descendente, se usa una materialidad pétrea que intensifica el significado de adentrarse en la tierra. Para la ascendente, los materiales y la construcción pretenden formar un conjunto de mayor ligereza, casi desafiando a la gravedad, que nos llevará a la planta alta, dnde encontramos la escultura alada, en contacto con el cielo, que preside la fachada preexistente.
